
Revolution MRL Holeless
- Overview
- Specifications
- Diagrams
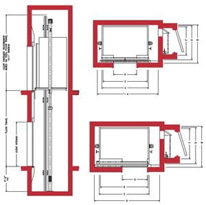
This design utilizes a 1’-6” x 4’-0” control space in place of a 5’-6” x 7’-0” typical machine room while delivering the same performance as our traditional holed and holeless elevators.
Advantages:
- Saves the building owner costs associated with a typical machine room (construction, HVAC, space).
- Suitable for mod or new construction.
- Can be used for existing hoist ways and non-standard dimensions.
- Control space can be located anywhere in the building and within 50’-0” of the hoist way.
- Utilizes a standard 4’-0” deep pit
Click below to see Sizing Details
Holeless - Front Open Only
| Type | Capacity (lbs) |
Hoistway - Width x Depth |
Platform - Width x Depth |
Inside Cab - |
Door Type |
Door Width |
| Passenger | 2000 | 8'-2" x 5'-10" | 6-'0" x 5'-1" | 5'-8" x 4'-3" | Single Speed |
3'-0" |
| 2500 | 9'-2" x 5'-10" | 7'-0" x 5'-1" | 6'-8" x 4'-3" | Single Speed |
3'-6" | |
| 2500 | 9'-2" x 5'-10" | 7'-0" x 5'-1" | 6'-8" x 4'-3" | Center Open |
3'-6" | |
| 3000 | 9'-2" x 6'-3" | 7'-0" x 5'-6" | 6'-8" x 4'-8" | Single Speed |
3'-6" | |
| 3000 | 9'-2" x 6'-3" | 7'-0" x 5'-6" | 6'-8" x 4'-8" | Center Open |
3'-6" | |
| 3500 | 9'-2" x 6'-11" | 7'-0" x 6'-2" | 6'-8" x 5'-4" | Single Speed |
3'-6" | |
| 3500 | 9'-2" x 6'-11" | 7'-0" x 6'-2" | 6'-8" x 5'-4" | Center Open* |
3'-6" | |
| 4000 | 10′-2″ x 6′-11″ | 8′-0″ x 6′-2″ | 7′-8″ x 5′-4″ | Single Speed |
4'-0" | |
| 4000 | 10′-2″ x 6′-11″ | 8′-0″ x 6′-2″ | 7′-8″ x 5′-4″ | Center Open |
4'-0" | |
| Hospital | 4000 | 8'-4" x 9'-6" | 6'-0" x 8'-8" | 5'-8" x 7'-8 1/2" | Two Speed |
4'-0" |
| 4500 | 8'-4" x 9'-11" | 6'-0" x 9'-1" | 5'-8" x 8'-1 1/2" | Two Speed |
4'-0" | |
| 5000 | 9'-0" x 10'-5" | 6'-0" x 9'-7" | 5'-8" x 8'-7 1/2" | Two Speed |
4'-6" |
Holeless and Rear Open
| Type | Capacity (lbs) |
Hoistway - Width x Depth |
Platform - Width x Depth |
Inside Cab - |
Door Type |
Door Width |
| Passenger | 2000 | 8'-2" x 6'-9 1/2" | 6-'0" x 5'-9" | 5'-8" x 4'-4 3/4" | Single Speed |
3'-0" |
| 2500 | 9'-2" x 6'-9 1/2" | 7'-0" x 5'-9" | 6'-8" x 4'-4 3/4" | Single Speed |
3'-6" | |
| 2500 | 9'-2" x 6'-9 1/2" | 7'-0" x 5'-9" | 6'-8" x 4'-4 3/4" | Center Open |
3'-6" | |
| 3000 | 9'-2" x 7'-1 1/2" | 7'-0" x 6'-1" | 6'-8" x 4'-8 3/4" | Single Speed |
3'-6" | |
| 3000 | 9'-2" x 7'-1 1/2" | 7'-0" x 6'-1" | 6'-8" x 4'-8 3/4" | Center Open |
3'-6" | |
| 3500 | 9'-2" x 7'-9 1/2" | 7'-0" x 6'-9" | 6'-8" x 5'-4 3/4" | Single Speed |
3'-6" | |
| 3500 | 9'-2" x 7'-9 1/2" | 7'-0" x 6'-9" | 6'-8" x 5'-4 3/4" | Center Open* |
3'-6" | |
| 4000 | 10′-2″ x 7′-9 1/2″ | 8′-0″ x 6′-9″ | 7'-8" x 5'-4 3/4" | Single Speed |
4'-0" | |
| 4000 | 10′-2″ x 7′-9 1/2″ | 8′-0″ x 6′-9″ | 7'-8" x 5'-4 3/4" | Center Open |
4'-0" | |
| Hospital | 4000 | 8'-2" x 10'-7 1/2" | 6'-0" x 9'-4" | 5'-8" x 7'-8 3/4" | Two Speed |
4'-0" |
| 4500 | 8'-2" x 11'-0 1/2" | 6'-0" x 9'-9" | 5'-8" x 8'-1 3/4" | Two Speed |
4'-0" | |
| 5000 | 9'-0" x 11'-6 1/2" | 6'-0" x 10'-3" | 5'-8" x 8'-7 3/4" | Two Speed |
4'-6" |
Additional Specs and Notes
Notes
- 2000-lb. car complies with NEII recommendations for car to accommodate wheelchair.
- 3500-lb. and larger cars comply with NEII recommendations for car to accommodate ambulance size stretcher
when equipped with single slide doors.
*Center parting doors do not allow stretchers.



